Concurso SESC Thermas de Presidente Prudente, 2025

2º Prêmio, Concursos SESC de Arquitetura, 2025

“Só na foz do rio é que se ouvem os murmúrios de todas as fontes”. Ave, Palavra. Guimarães Rosa

Lugar das águas

O novo Sesc Thermas de Presidente Prudente, associado ao conjunto de parques e espaços de lazer, forma importante reserva verde para a cidade, polo universitário, econômico e de serviços da região do Pontal do Paranapanema. O caráter especial dessa unidade é definido pelas águas termais advindas de um poço profundo nas redondezas.

No entanto, a presença da água se dá também por outros fatores: O Sesc Thermas ocupa o final da bacia do córrego da Unesp. Toda a água de chuva que cai sobre essa área de cerca de 1km2 se afunila [em um tubo de 1,60m de diâmetro] no parque que deságua no córrego do Veado, deste para o Córrego Santo Anastácio, culminando no Rio Paraná. O conjunto de áreas verdes que compreende o Parque do Povo, o Campus da Unesp e o terreno do Sesc deveriam funcionar como parques-esponja para infiltrar a água de chuva e retardar seu movimento superficial, além de constituir um efetivo corredor ecológico.

Em tempos de emergência climática é necessário saber conviver com as cheias, entender que os rios tem leitos maiores que os aparentes, manejar as águas e transformá-las em um bem, não em um problema. Se o terreno já era uma área alagável, por ser várzea de um rio e estar na sua foz, com a urbanização impermeabilizante e a canalização do seu trecho final, os alagamentos serão constantes, cabe então ao projeto tentar minimizar a conotação de algo indesejável. Ou seja, irá alagar (tornar-se lago) e esse movimento das águas poderá ser incorporado aos espaços do parque. Terá que evitar a presença indesejável da poluição difusa, limpando as águas superficiais e contendo as cheias em jardins especificamente pensados para isso.

A relação com a água deve ser uma das atividades centrais do Centro de Educação Ambiental, ensinando um repertório de manejo que possa ser replicado de forma sistêmica. Ações concretas propostas para o parque: retardar a velocidade das águas, plantar árvores, criar áreas de infiltração, alagamento e jardins absorventes, pequenas escadas drenantes, cisternas, wetlands, laguinhos e filtros vegetais. São pequenas soluções de fácil manutenção e enorme impacto. No futuro, em função da necessidade de manutenção da tubulação existente da canalização do córrego, poderia se prever sua abertura, enfatizando a relação entre parque e água.

Paisagem

Presidente Prudente se localiza em região com predominância de Mata Atlântica com transição para o Cerrado. O estudo das pré-existências ajardinadas e uma nova configuração cênica e micro ambiental guiou o projeto, integrando-se às águas, árvores existentes e procurando estabelecer relações com os remanescentes vegetacionais do bioma prevalente.

O projeto procura consolidar a criação de uma Unidade-Parque com Centro de Educação Ambiental, com uma abordagem paisagística naturalista e regenerativa que valorize o manejo das águas e espécies nativas das formações florestais locais, classificadas como floresta estacional semidecidual. Também busca qualidade ambiental para a edificação e estímulos para a interação com a vegetação e a paisagem nativas. Incorpora espécies de flora do bioma regional, árvores frutíferas e jardins polinizadores, para atrair espécies da fauna local. Além disso, pode-se pensar em corredores ecológicos para os animais da região, conectando as áreas de maciço arbóreo que serão cruzadas por áreas de circulação de serviços e social. Os corredores aéreos podem ser propostos em parceria com prefeitura local e a prefeitura do Campus da UNESP. O SESC Thermas tem localização estratégica do ponto de vista ecológico pois conecta o maciço arbóreo da UNESP, que se conecta ao do Parque do Povo e ao maciço das margens do Córrego do Veado.

A conservação de 88% das árvores existentes se integra ao paisagismo pensado como ferramenta de gestão ambiental, na criação de ilhas de conservação de biodiversidade vegetal, nos arranjos florísticos e métodos de ajardinamento propostos com o objetivo da ecogênese.

Áreas de permanência surgem nos grandes jardins em forma de pétalas, conectados por caminhos e trilhas, na sua maioria sobre os caminhos existentes, envoltos por manchas de vegetação compondo o desenho do parque. Essas manchas priorizam as espécies existentes. Além da vegetação arbórea, o projeto incorpora uma diversidade de espécies arbustivas e forrações, abrangendo todos os estratos vegetais, ampliando a biodiversidade e enriquecendo a composição paisagística.

Em áreas abertas, foram propostos gramados como espaços de permanência e caminhos que favorecem a interação entre visitantes e vegetação. Taludes recreativos complementam essas áreas ao formar espaços lúdicos e convidativos, associados a equipamentos de brincar.

Na porção do terreno mais crítica a alagamentos, foram propostos jardins com espécies adaptadas a essa situação, indicando o caminho das águas, com áreas de retenção para o excesso percolar no solo de maneira gradativa, com jardins de chuva e pisos permeáveis. Na porção seca do terreno, o plantio agroflorestal se estabelece como ocupação produtiva pioneira. Ao longo do tempo, essa vegetação será gradualmente substituída por mata densa, consolidando o processo de regeneração.

O projeto prevê um espaço dedicado a atividades de experimentação e educação ambiental, com a implantação de horta agroecológica, estufa e composteira, afastada dos usos regulares de público, onde visitantes entendem o ciclo completo: resíduo → compostagem → adubo → produção na horta. O novo edifício contribui com a captação de águas pluviais: garante o sistema de irrigação dos jardins e níveis dos pequenos lagos que, além de proporcionarem umidade e qualidade ambiental ao parque, permitem retenção e limpeza de águas de chuva. A adoção de vegetação nativa e de baixo consumo hídrico busca redução no consumo de água. A vegetação nativa já é naturalmente adaptada ao regime climático local, necessitando menor quantidade de irrigação. Sua evapotranspiração também tende a ser menor do que espécies não adaptadas ao clima.

Novos acessos ao parque foram acrescidos de pequenas praças, com bancos, painel de informações e sombras garantidas. Um alargamento das calçadas foi desenhado no ponto alto da plateia externa, ampliando a relação cênica com a cidade, imaginando que a rua possa ser parte do espetáculo.

Algumas baias de estacionamento foram previstas na periferia do terreno para acomodar ônibus de visitantes, chegada de estudantes e também carga e descarga de caminhões.

Implantação

A premissa fundamental foi ocupar a clareira remanescente da antiga construção, evitando retirada da arborização do parque. O edifício principal concentra os usos em um bloco linear de 4 pavimentos e um subsolo, e abrigará as novas atividades, desenhado para não se espraiar sobre a vegetação.

Esse bloco concentrado aproveita os diferentes níveis do terreno para acomodar os programas solicitados: o teatro ao ar livre se encaixa à topografia junto à rua Floriano Borges, formando uma arquibancada natural em meio às árvores existentes e um acesso de serviços liga diretamente o palco à rua; a entrada do estacionamento se localiza do lado oposto, facilitando o acesso de carros e caminhões ao subsolo por uma rampa; e o acesso principal de público se faz pela rua Alberto Peters. O saguão de entrada se estende até o exterior como convite às pessoas para ingressar. A relação da edificação com o parque se dá pela mediação da praça: um piso que se esparrama pelos jardins, entremeando jardins novos, existentes, e águas para diversas experiências: jatos, tanques, prainhas, chuveiros. A umidade como experiência da nova unidade.

O parque passa a ter diferentes acessos pelas ruas envoltórias. O acesso ao novo edimcio, para quem vem do parque, acontecerá por uma rampa suave que chega até a Praça, em continuidade à Comedoria, ao Café e às Piscinas. Aí estão os vestiários, que servem de triagem às Piscinas cobertas e ao solário com piscinas recreativas e praça molhada. As áreas de exame médico foram localizadas junto aos vestiários, com circulação protegida e independente do público em geral.

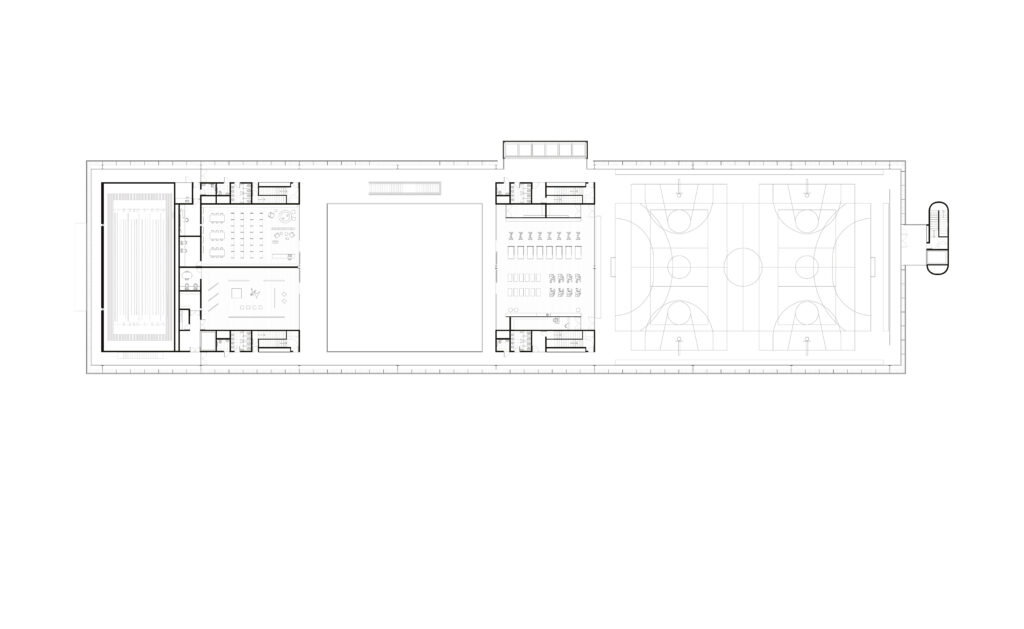
A estratégia de concentrar programas para preservar árvores foi utilizada também para a quadra de areia, arquibancada, quiosque com sorveteria e varanda, que foram propostos no interior do parque, aproveitando parte da clareira da antiga quadra esportiva externa. Abriga ainda o espaço destinado ao Centro de Educação Ambiental, junto da horta agroecológica, compostagem e área de experimentação agroflorestal. Outros programas como redários, pique-niques, ginástica ao ar livre e brinquedos para crianças estarão esparramados pelo parque, protegidos pelo sombreamento das árvores existentes.

Junto da entrada principal, está o conjunto de salas de Múltiplo Uso, animando esse andar com atividades que recebem estudantes de escolas da região, recepção cheia de vida coletiva. As salas de Fisioterapia ficam próximas, conforme indicado no edital, mas resguardadas do fluxo intenso de chegada. Junto ao acesso ainda se concentra o Atendimento ao público e Loja, com fácil acesso e visibilidade, além dos serviços Odontológicos. Agrupam-se, assim, com independência dos demais usos, as filas de espera associadas a essas atividades. O saguão de chegada direciona interesses: atrai as pessoas a subirem ao piso da Convivência, ou a descer para a Praça e Comedoria. Junto à entrada principal se localiza ainda a prumada de elevadores que percorre todos os níveis, oferecendo conforto e acessibilidade universal. O acesso de serviços foi feito por cota seca, através de rampa de 12%, pela rua Alberto Peters, para automóveis, motos, caminhões, bicicletas até o estacionamento, com controle antes da entrada.

Coração do Sesc Thermas

Os espaços sobrepostos destinados à Convivência e às Piscinas formam o coração desse projeto. Estabelecem relações visuais com a rua e com o parque, constroem a mediação e animam ambos. Desde a cidade, se percebem as atividades do centro aquático, bem como o que se passa na Convivência. O edifício se torna um mirante e referência na cidade.

A Convivência conecta muitos usos e foi pensada como espaço múltiplo, um lugar central de acolhimento e tranquilidade. Por isso não se localiza na entrada, não se reduz a um local de passagem. Esse átrio será equipado para permitir pequenas apresentações, atividades informais e descanso: uma grande praça coberta e sombreada. Funciona como extensão do espaço Infanto-juvenil e como Foyer do teatro. Por aí também pode-se chegar à Biblioteca, Exposições, Academia de ginástica e Quadras poliesportivas. Esporte, cultura, lazer e educação confluem para esse ambiente de interação. Todos os programas dos andares superiores estão sob o céu, banhados de luz indireta. Muitos ambientes necessitam pés direitos altos. Deste espaço central também se faz o acesso, por pontes sobre o saguão de entrada, à Administração, espaço de trabalho protegido da agitação.

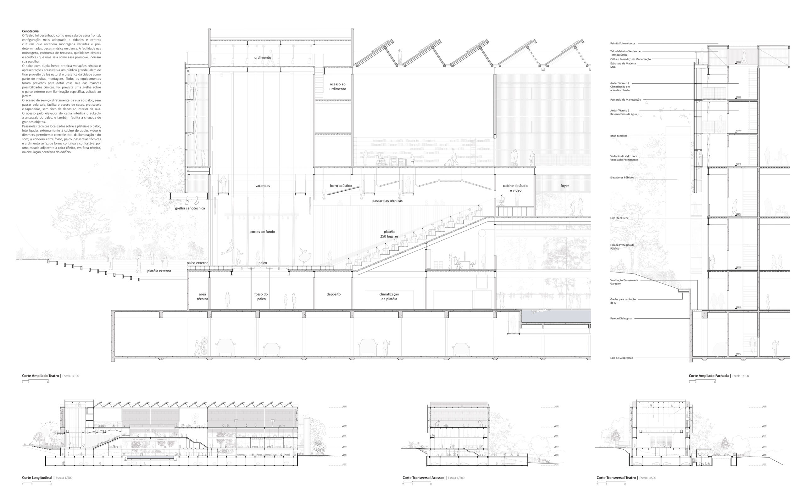
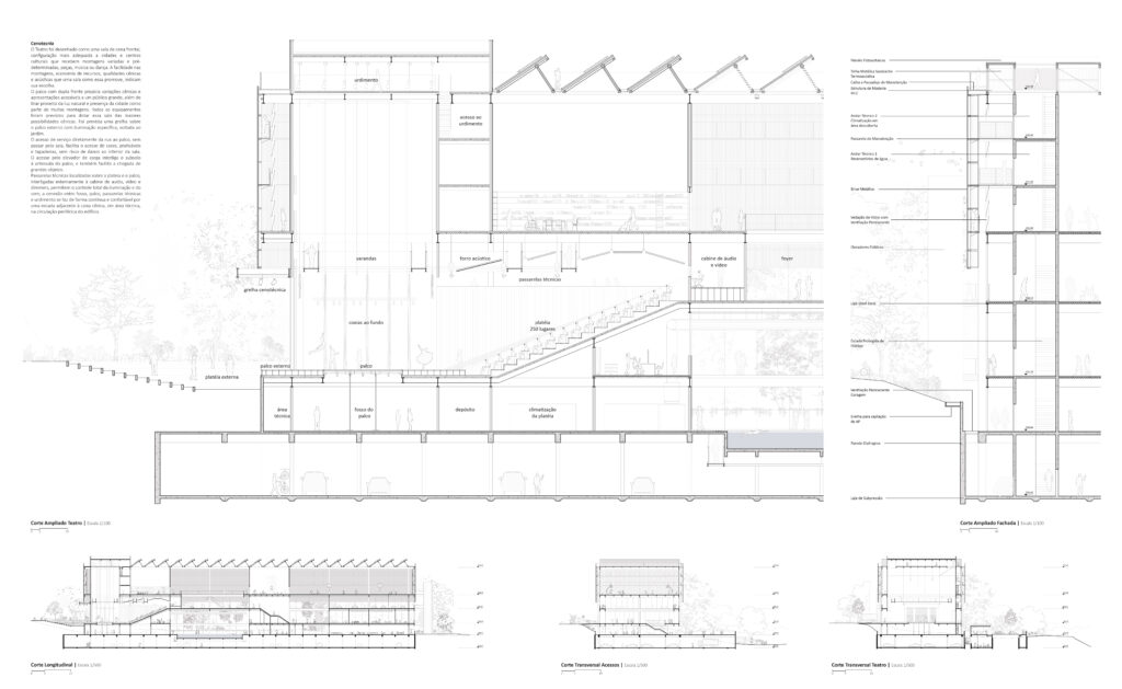
O Teatro foi pensado como uma sala de cena frontal, configuração mais adequada a cidades e centros culturais que recebem montagens variadas e pré-determinadas, peças, música ou dança. A facilidade nas montagens, economia de recursos, qualidades cênicas e acústicas que uma sala como essa promove, indicam sua escolha. O Teatro aproveita a altura total do edifício para abrigar a caixa de palco, possui elevador de carga ligado à doca e acesso de serviços direto da rua.

Construção

O sistema construtivo e materiais de construção utilizados buscam máximo rendimento, resultando em sistemas de técnicas mistas, escolhidos em função de suas características e necessidades. O objetivo é garantir economia e baixa manutenção, aliadas à qualidade espacial e expressiva.

O subsolo em concreto concentra todo o Estacionamento, Doca e Áreas técnicas. As áreas de trabalho e descanso como o Mesa Brasil, Almoxarifados e o Bem Viver se abrem a pátios ajardinados que garantem iluminação e ventilação naturais aos funcionários e trabalhadores locais. O volume aflora como pedra no parque e configura praças e solários.

A superestrutura se organiza em pórticos metálicos a cada 15,40m, dando sustentação a um sistema de vigas mistas metálicas espaçadas entre si de 3,30m. As caixas de circulação vertical e sanitários foram propostas em concreto, dando maior rigidez e estabilidade ao conjunto. A estrutura principal em aço, em função de certa verticalização, reduz custos, ganha eficiência e rapidez na montagem, resultando em facilidade na aprovação do projeto, sobretudo com bombeiros.

O novo edifício foi pensado para ter várias saídas de emergência meticulosamente posicionadas. Toda a edificação será dotada de sistema simples de detecção de fumaça, garantindo as distâncias corretas para as rotas de fuga.

A cobertura contínua iluminante terá estrutura de madeira lamelada e colada, totalmente industrializada e certificada. Um conjunto de peças delgadas de madeira conforma uma estrutura espacial com sheds de abertura à face sul, garantindo vasta iluminação, sem incidência de calor, com ventilação permanente onde desejável. Toda essa cobertura funciona como uma máquina de captação de água doce e produção de energia elétrica a partir do sol.

As fachadas dos andares superiores são planos metálicos de sombreamento vertical que distam do vedos interiores de vidro, ambos permitindo ventilação permanente. Os andares inferiores, mais transparentes, estão protegidos do sol pelas copas das árvores existentes, preservadas e abundantes. Cinco prumadas infraestruturais concentram as escadas protegidas, sanitários públicos, depósitos, instalações e elevadores de serviço, além da torre de elevadores de uso público. O acesso à cobertura e áreas de manutenção se dá diretamente por estas torres, em área técnica segura com controle de ingresso. As calhas na cobertura possuem passadiços em grelha para facilitar acessos e manutenção. O edifício foi cuidadosamente pensado para otimizar todos os sistemas de instalações: estas prumadas verticais com shafts facilmente acessíveis conectam do subsolo à cobertura.

No topo destas há dois andares técnicos em cada, onde se localizam reservatórios e barriletes, máquinas de climatização [chillers, bombas e condensadoras] e exaustão mecânica [piscinas, vestiários, palco do teatro e cozinha].

O projeto prevê estratégias-chave para melhor desempenho da edificação e economia de energia, prioriza desenho de cobertura que fornece adequadas condições de iluminação e ventilação natural ao posicionar sheds com abertura sul e cobertura inclinada a 24 graus sentido norte e maximiza o desempenho dos módulos fotovoltaicos propostos visando resultado eficiente, tanto do ponto de vista do conforto do usuário quanto da eficiência energética. Promove ainda autonomia de luz diurna e indica que o edifício alcançará o nível mínimo de 300 lux em todo o ano nos ambientes principais, além de estratégias de economia na iluminação artificial.

Concreto permeável foi proposto para os caminhos do parque, minimizando problemas ambientais e urbanos decorrentes da impermeabilização do solo. Estratégias específicas podem reduzir a poluição luminosa, comum em centros urbanos, para diminuir o impacto na rotina e desenvolvimento das espécies que utilizam o terreno e o entorno como habitat natural.

O projeto procura desenvolver a inclusão nos espaços públicos e coletivos, garantindo que todos os cidadãos, independentemente de idade, condição física ou sensorial, possam se encontrar, interagir, circular e usufruir plenamente do ambiente construído para o Sesc Thermas. Isso fortalece o tecido social, promove a igualdade de direitos e incentiva a convivência entre diferentes grupos sociais, essencial em sociedades diversas e democráticas. Um edifício que se molda como espaço de vida entre pedra e céu.

 

Queremos que o parque que existe seja preservado e enriquecido com novas espécies e atividades. Que as crianças possam brincar entre as árvores, se encontrar com pequenos animais ou plantas de nossa flora, descobrir pequenos frutos e flores.

Que as novas atividades sejam potencializadas pelos programas concentrados no edifício, usos mesclados que são patrimônio consolidado pelo Sesc, com sensação de fluidez e muito ar.

Que a convivência seja um espaço de liberdade e intensidade, coração do projeto, assim como as águas, diversificadas por diferentes sensações, em tanques, praças e equipamentos, cobertas ou ao ar livre.

Que sempre se veja e seja avistado, a conexão visual criando convites e possibilidades de descobertas de novos interesses.

Que seja um abrigo fresco, protegido do calor excessivo, cada vez mais constante, sem a necessidade de consumo exagerado de energia para que seja confortável.

Que o teatro se abra para a cidade, que seja um convite às pessoas de Prudente.

Queremos juntar mundos. E que os caminhos existentes em meio aos jardins indiquem mais e mais caminhos a descobrir, para que a vida seja plena, democrática, compartilhada e saudável.

 

 

arquitetura UNA MUNIZVIEGAS – cristiane muniz e fernando felippe viégas

colaboradores joaquin gak, ana luiza correa, leonardo sarabanda, paula reis, thiago augustus, antônio muniz viégas, domenico santoro, madalena storto, melissa vasques, sabrine klitzke, katia castilho

consultoria de climatização eduardo kayano

consultoria de manejo de águas fernando nigro

consultoria de paisagismo gabriella ornaghi e bianca vasoni

consultoria de cenotecnia gustavo lanfranchi

consultoria de estruturas e fundação heloisa maringoni

consultoria de instalações prediais jairo daniel

consultoria de estrutura em madeira joão pini e marcus vinicius barreto lima

consultoria de sustentabilidade marcelo nudel e larissa azevedo luiz

consultoria de segurança e combate a incêndio morandir meira brandão