Concurso SESC Galeria, 2025

Menção Honrosa, Concursos SESC de Arquitetura 2025, em parceria com Colectivo C733

O Edifício João Brícola, conhecido como antigo Mappin, é parte fundamental da construção da paisagem do centro da cidade. Exemplar da verticalização do final dos anos 30 e da expansão do centro velho, estabelece um contraponto vertical à horizontal do Viaduto do Chá, ambos projetos de Elisiário Bahiana. Nas cabeças do viaduto estão a sede da prefeitura e o Shopping Light. O recinto formado pelo novo Sesc Galeria e Theatro Municipal corresponde ao da Praça do Patriarca, espaços públicos complementares ao metropolitano Anhangabaú. O redesenho desse largo poderá estender ao exterior as atividades dos dois importantes equipamentos culturais. Propomos uma intervenção sutil, baseada nos elementos existentes como postes, pisos, árvores e bancos, que permite identificar o novo terreiro de atividades culturais e os eixos importantes dos calçadões do centro.

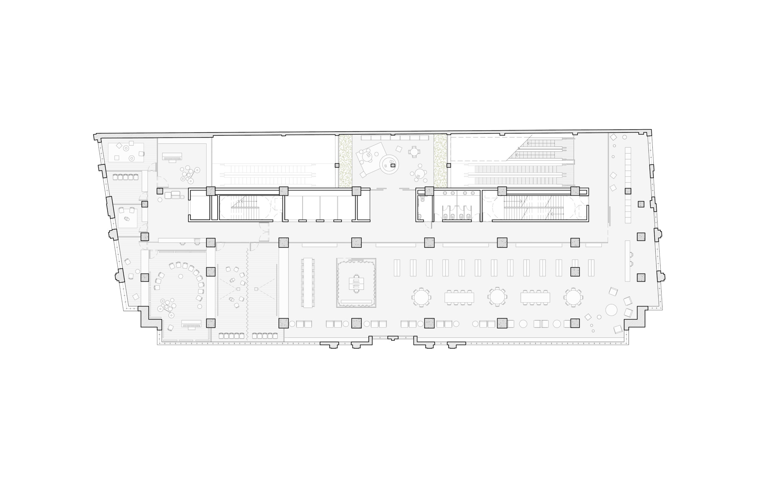
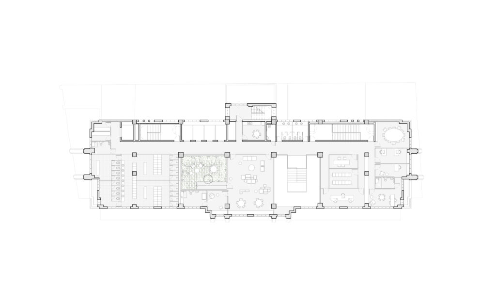
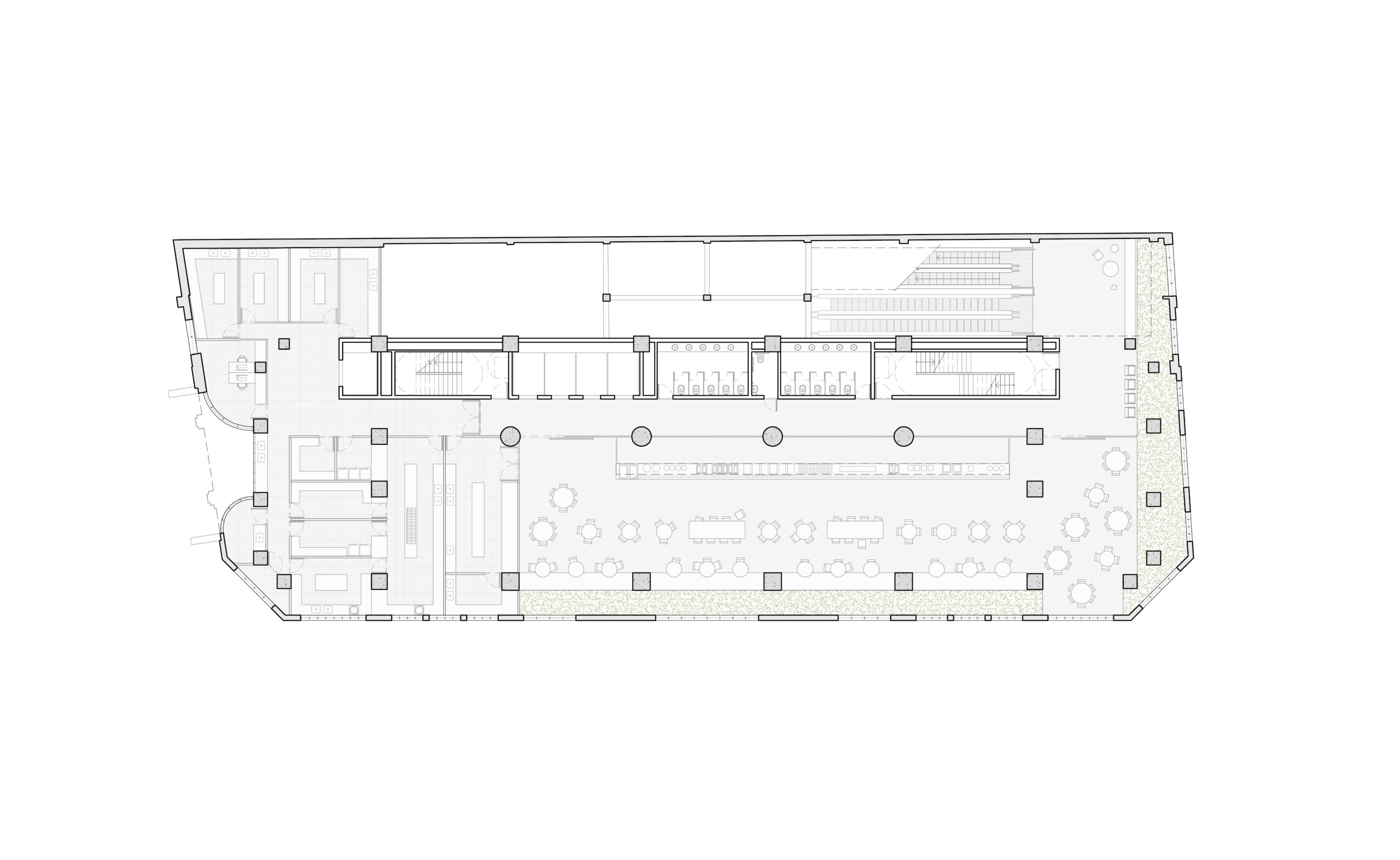
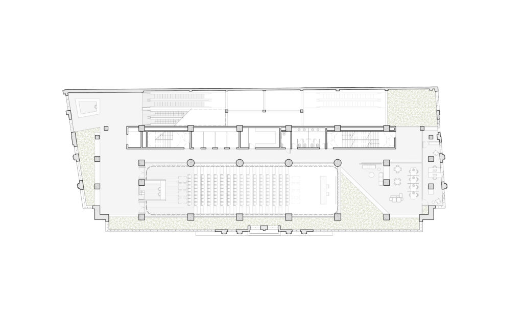
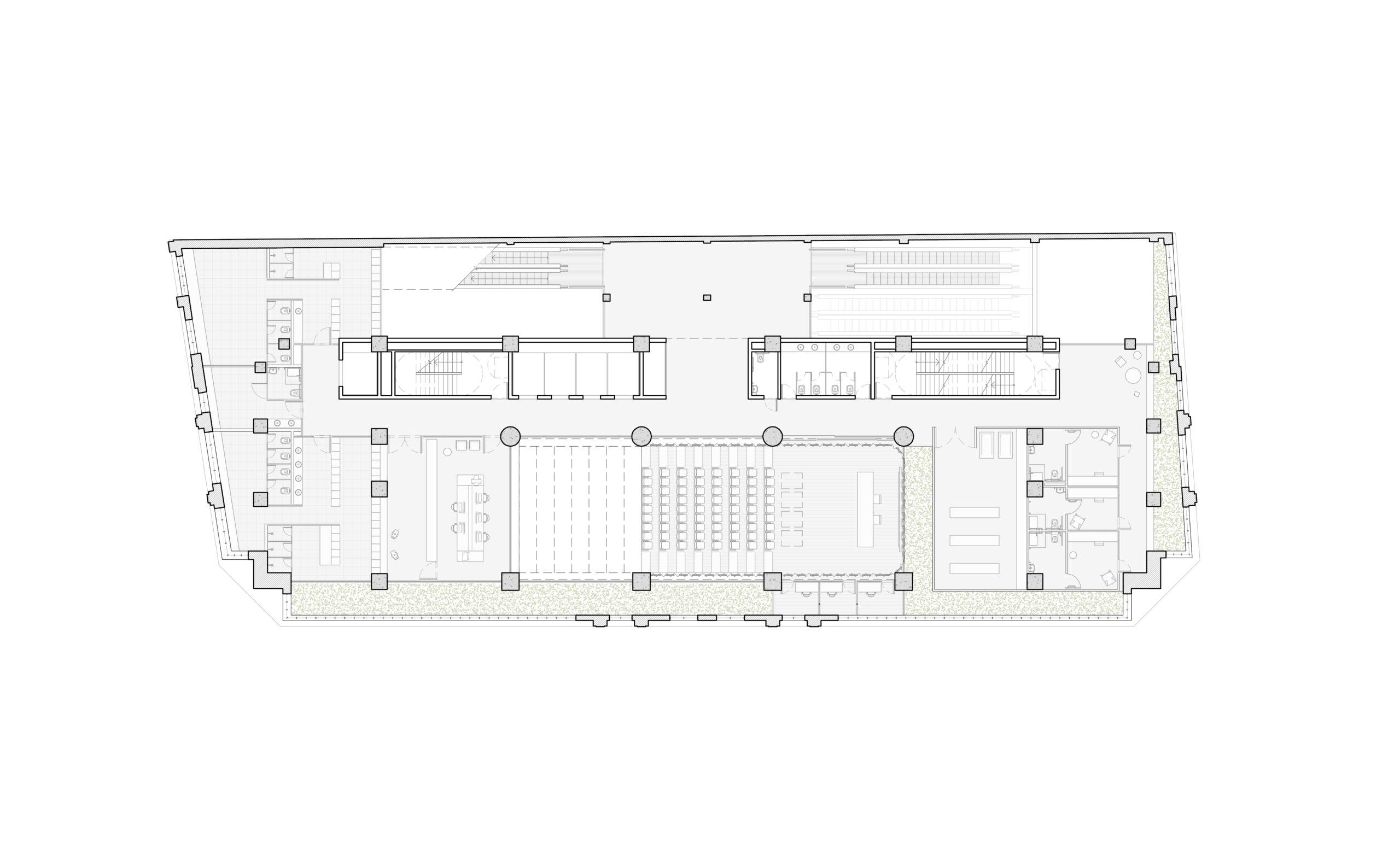
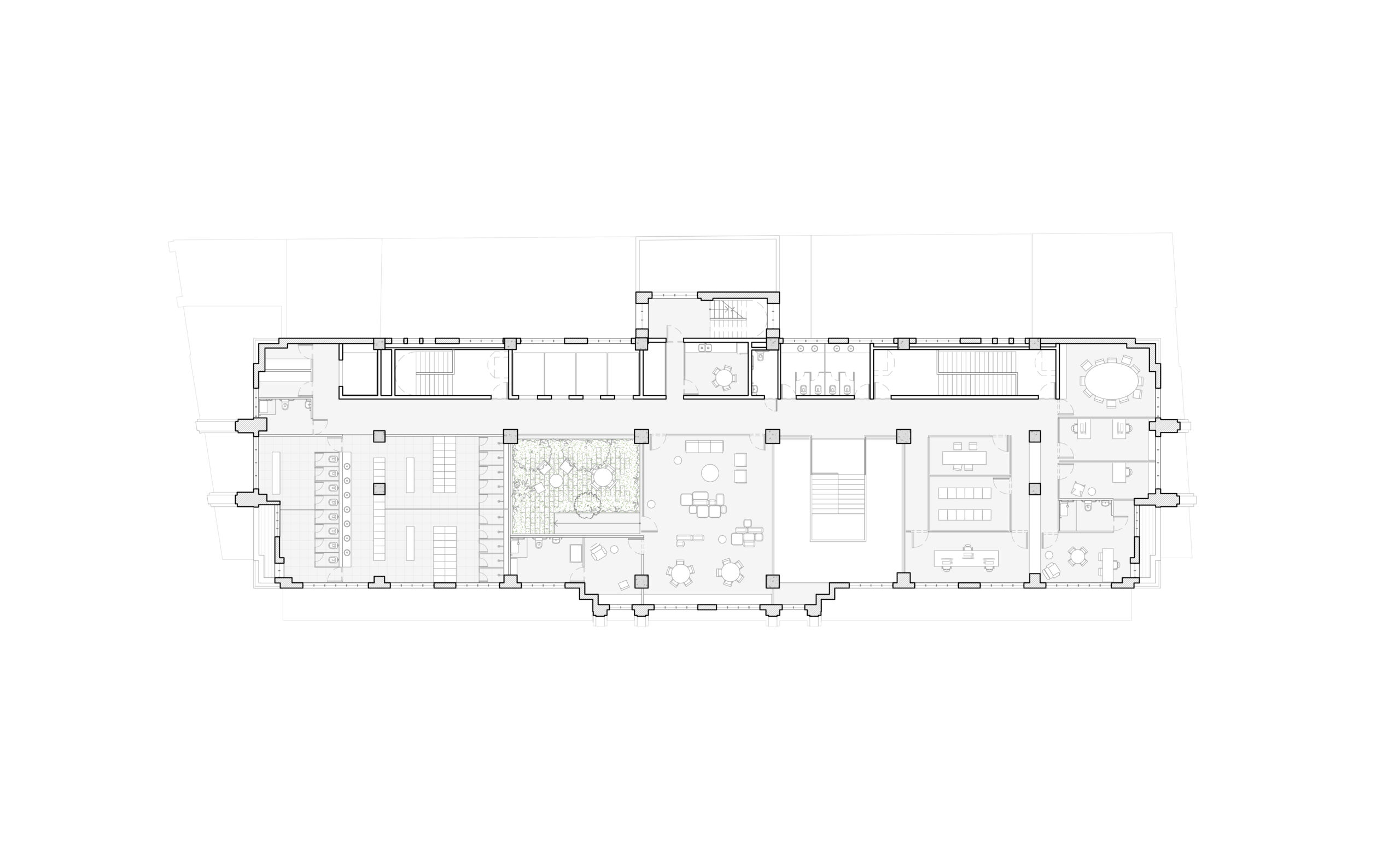
A intervenção arquitetônica busca transformar o edifício gravítico, opaco e fechado, em uma peça urbana permeável e porosa sem alterar fachada nem volumetria originais. Um espaço coletivo vertical repleto de jardins e praças, numa construção voltada à face norte. A Convivência e a Galeria no térreo se mesclam às galerias históricas de pedestres costurando as quadras com o sistema de passagens do centro novo. Estabelecem fluidez com as ruas ao redor e fundem o recinto do Theatro Municipal ao Sesc Galeria, com escadas rolantes como continuidade do passeio público. Esse sistema de circulação vertical é comum às demais galerias e às estações de metrô, solução cotidiana incorporada à vida urbana e presente na memória de todos que frequentaram o Mappin. As rolantes terão iluminação zenital. O fundo de lote, cheio de puxadinhos, passa a ser um grande saguão qualificado que convida aos percursos internos e retoma a ideia dos pátios originais de iluminação do projeto inicial da antiga edificação.

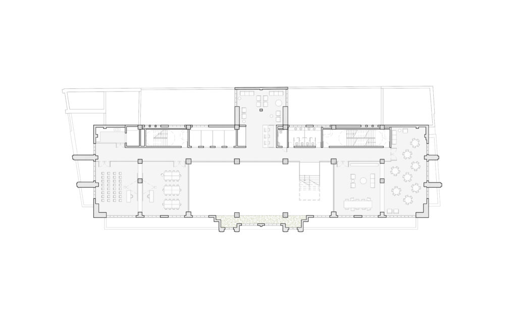
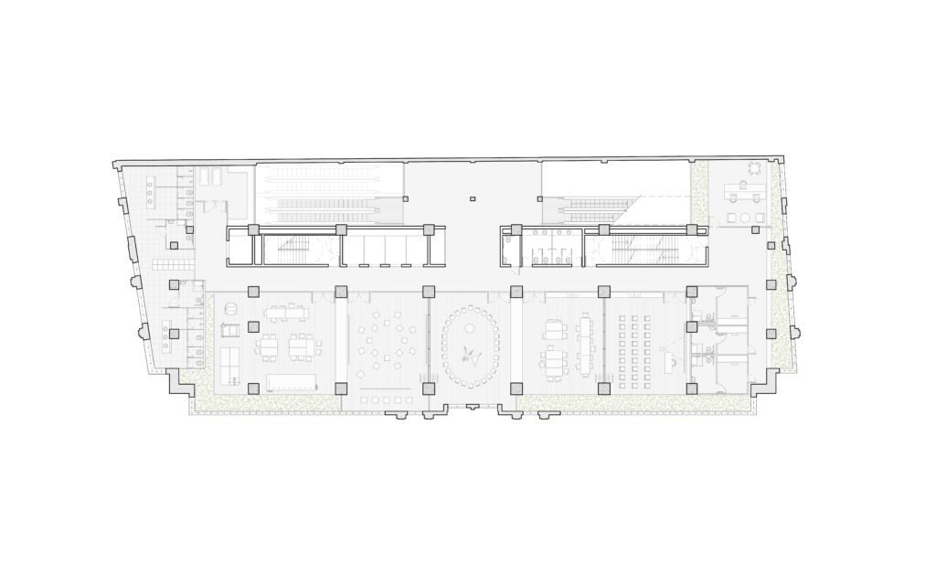
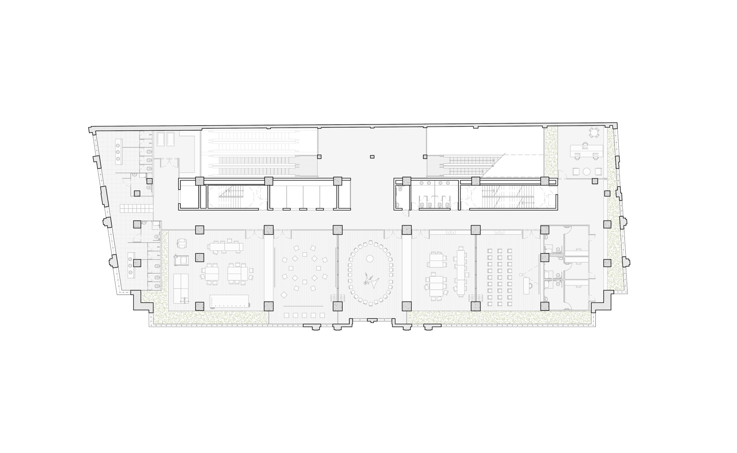
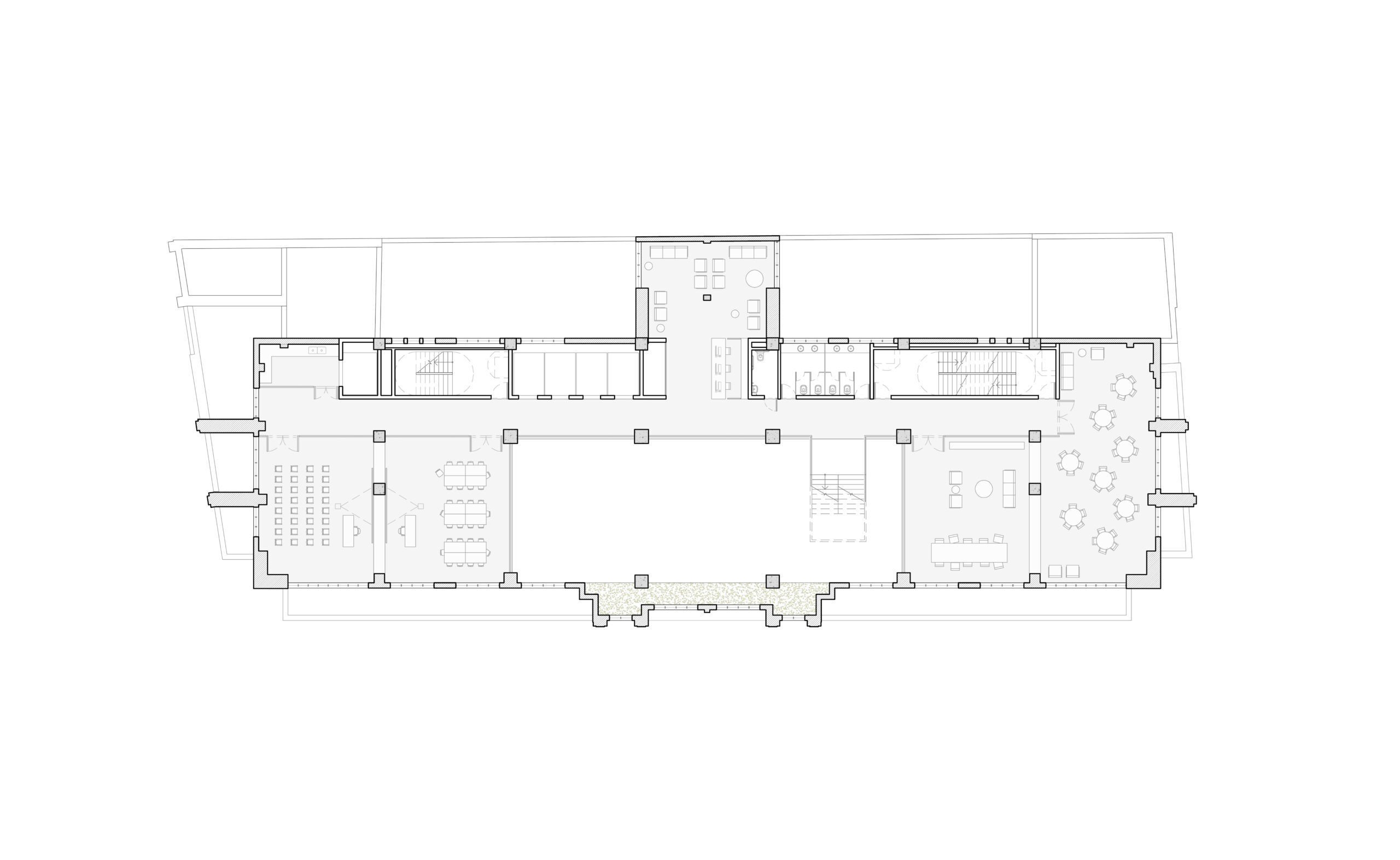
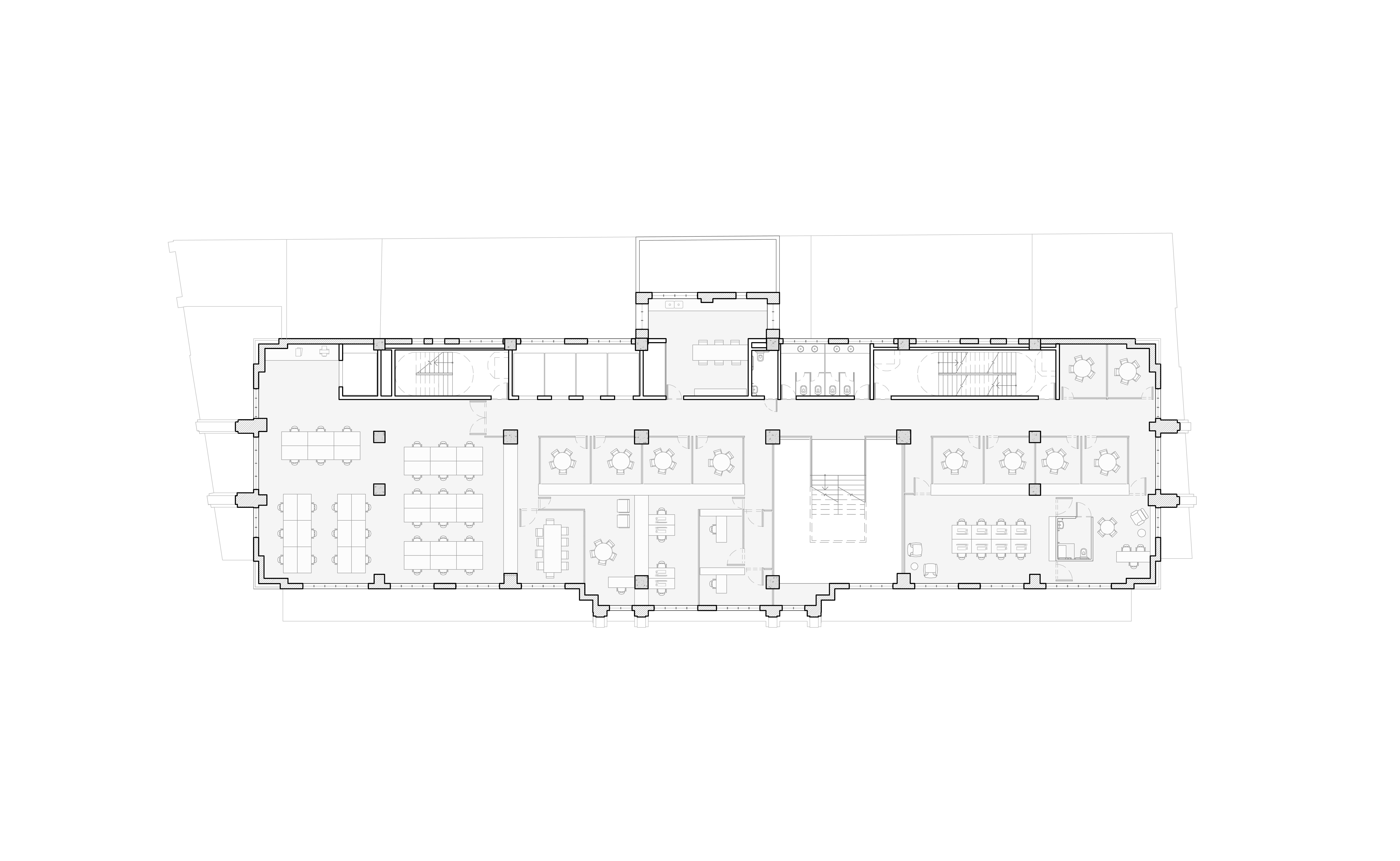
Os espaços abertos ao uso público foram distribuídos ao longo da primeira parte do edifício, do subsolo ao sexto andar, com as rolantes que interligam usos francos: Central de atendimento, Comedoria, Auditório, Turismo social, Centro de Experimentação Artística e Biblioteca. As atividades de acesso mais controlado são abrigadas nos andares superiores: CPF, Edições SESC e Apoio Operacional. O edifício fica, portanto, setorizado verticalmente. Entre esses dois blocos propomos uma praça elevada, como um desdobramento do chão da metrópole, que abriga mais espaços de Convivência, Cafeteria e Espaço infanto-juvenil: saguões generosos onde adultos, crianças, idosos são bem-vindos e podem conviver livremente, sem predeterminações, com denso jardim. Essa vegetação estabelece um diálogo com outros jardins e coberturas do centro, como o Edifício Matarazzo e o Sesc 24 de Maio. A cafeteria oferece a mais bonita relação visual com o Theatro Municipal, a Praça Ramos de Azevedo e as perspectivas do Viaduto do Chá e Rua Barão de Itapetininga. Um mirante que a edificação naturalmente convida à contemplação: já existe aí um terraço periférico que define a volumetria arquitetônica bipartida.

Se a continuidade espacial dos sete primeiros níveis se faz pelas rolantes, uma subtração de trechos de lajes dos andares superiores permite um vazio central que interliga visualmente as atividades. A praça da Cafeteria é o novo chão desse espaço interior. Uma escada pendurada, imersa nesse átrio, conecta diretamente os andares, com relação direta entre os pisos. As circulações horizontais internas se abrem para o Theatro Municipal, que passa a ser visto integralmente através das janelas da fachada.

As novas intervenções aparecem claramente no edifício antigo. Em contraponto à massa opaca e pesada, optou-se pela leveza. O trabalho principal foi o de escavar e subtrair, trazer mais ar às estruturas internas.  Novas estruturas metálicas que trazem a tração em contraponto à compressão.

Quando se acrescentam novos corpos, esses são minerais, metal e vidro, ou vegetais, plantas e madeira. A madeira é componente importante do mobiliário e os jardins configuram muitos dos espaços internos, acentuando a diluição de limites entre edifício e cidade, interno e externo. Os minerais estabelecem dupla função na construção do ambiente: de transparência, continuidades, e também de reflexão, ampliando a capacidade de reverberação da atmosfera espacial. O jardim d’água na praça elevada também amplia o espelhamento da vegetação que verticalmente compõe essa ambiência. Um novo tempo para o edifício quase centenário, que passa a incorporar os desafios contemporâneos da escassez de recursos do planeta. O edifício mais sustentável é o que já existe.

 

local república, são paulo, sp

projeto 2025

arquitetura cristiane muniz, fernando viégas, israel espín, josé amozurrutia, gabriela carrillo, eric valdez, carlos facio gaxiola (UNA MUNIZVIEGAS + Colectivo C733)

colaboradores joaquin gak, leonardo sarabanda, ana luiza correa, luisa martins, antônio muniz viegas, sabrine klitzke, katia castilho, kevin diaz, paula reis, fernando rodriguez, eduardo suárez, gersaín aquino, pedro domingues, carolina andrade, joyce meneses