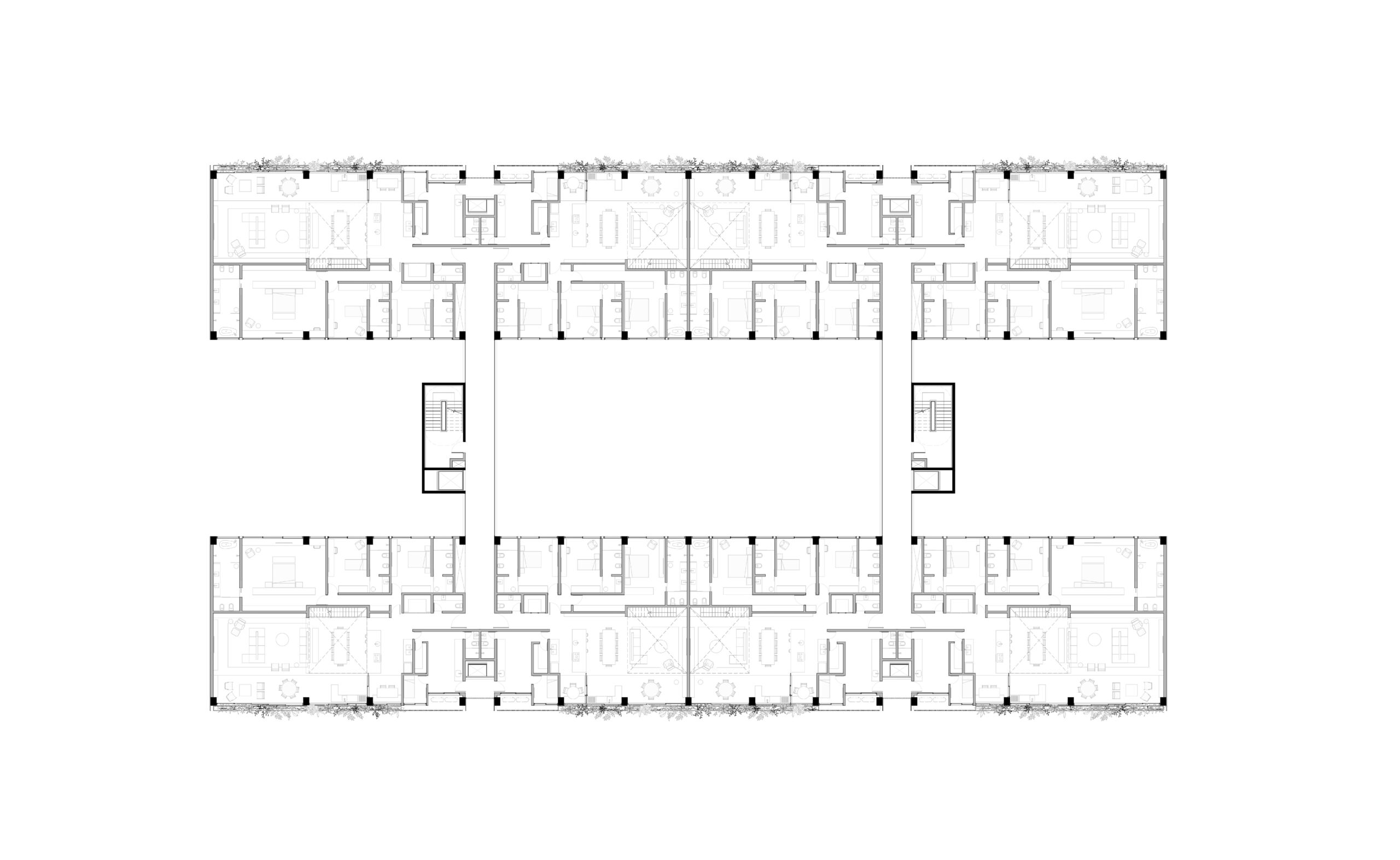
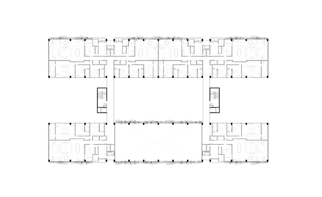
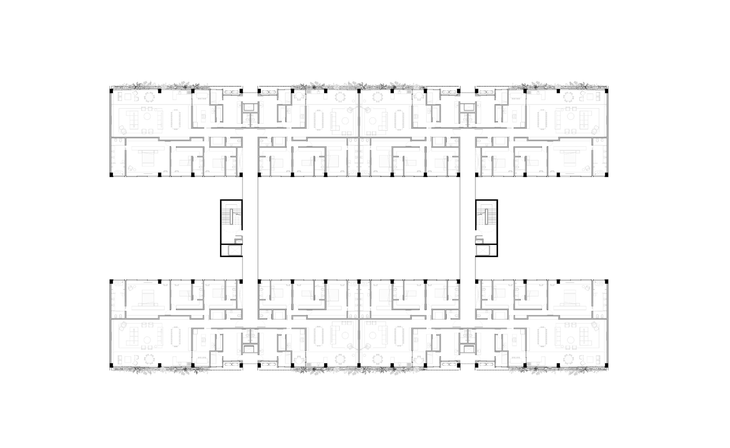
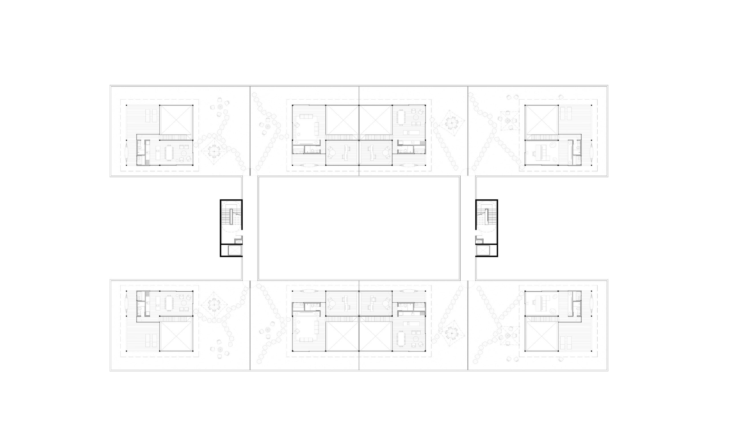
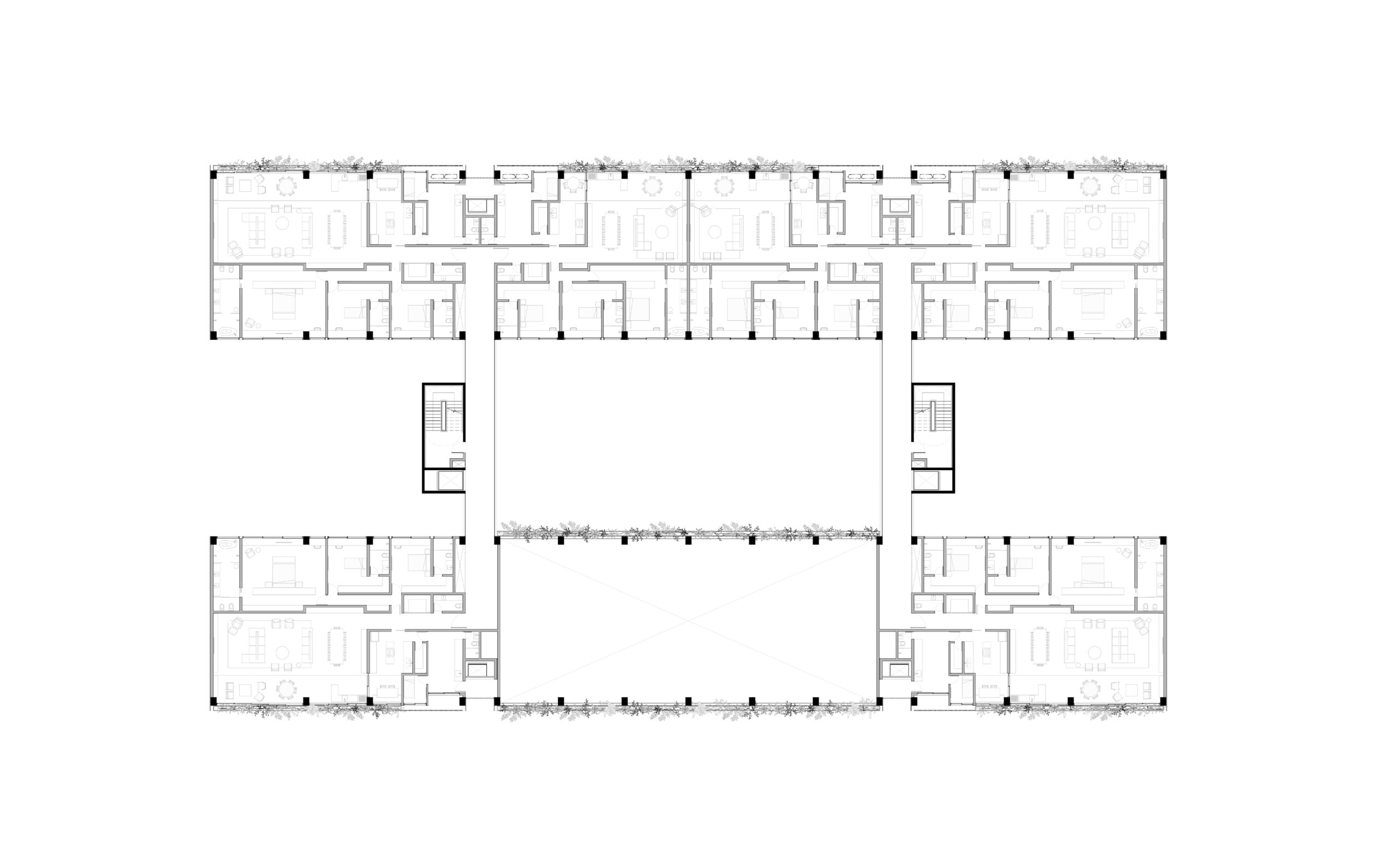
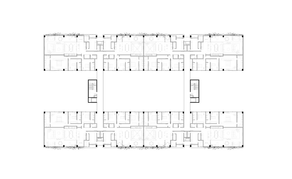
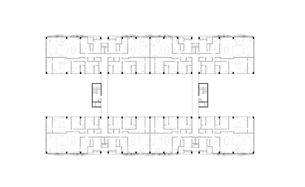
Conjunto Residencial São José do Rio Preto, 2024

local são josé do rio preto, sp

projeto 2024

área do terreno 43.350,00m²

área construída 88.950,00m²

arquitetura cristiane muniz e fernando viégas

colaboradores joaquin gak, leonardo sarabanda, paula reis, ana luiz correa, luisa martins, melissa vasques, sabrine klitzke, antonio muniz viegas

 

empreendimento hdauff empreendimentos imobiliários

paisagismo gabriella ornaghi e bianca vasone

interiores triplex arquitetura

imagens art pixel 3D