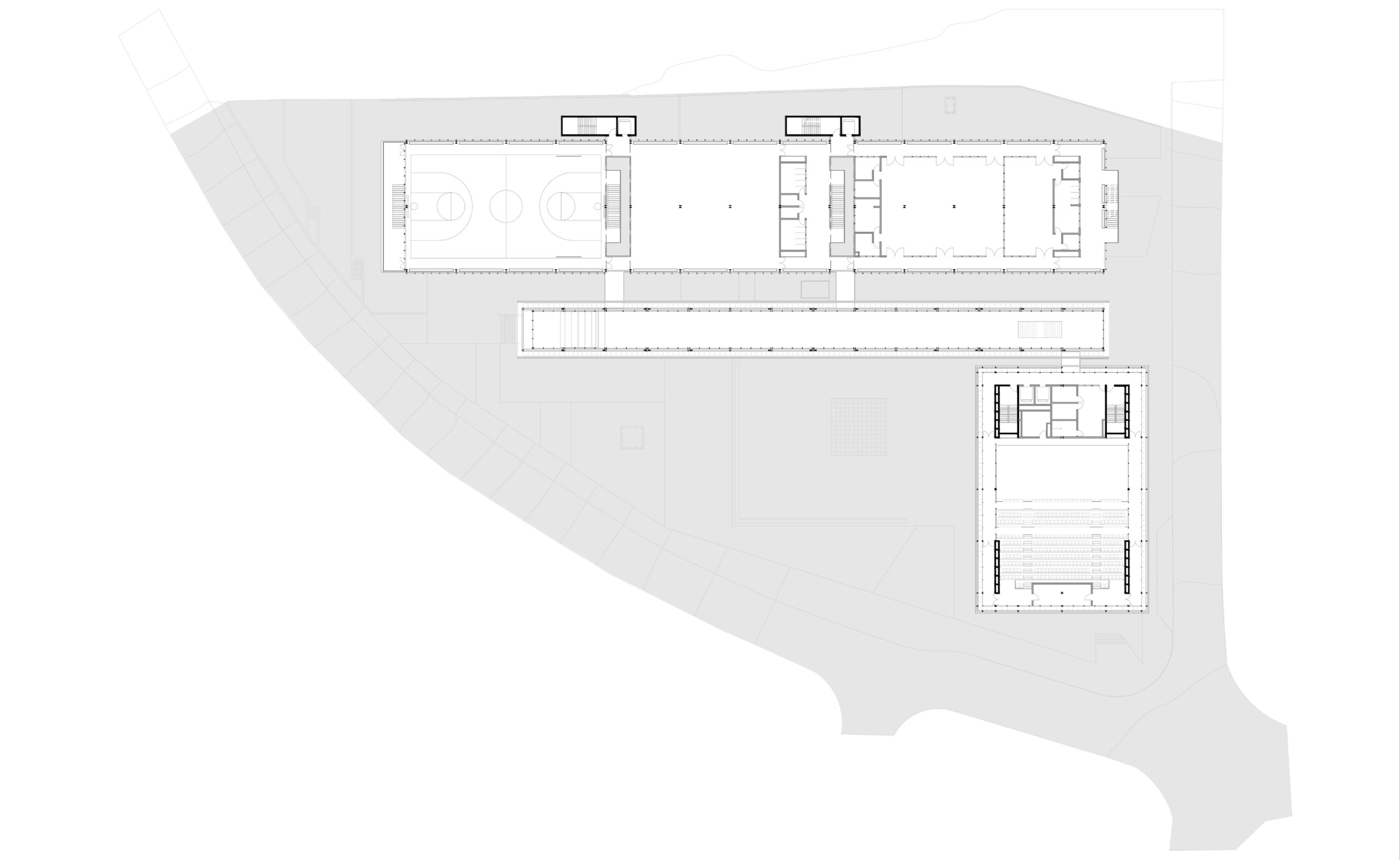
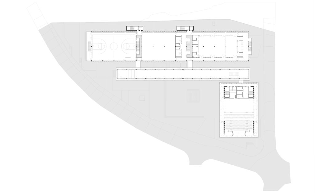
Quarteirão da Educação de Diadema, 2024

projeto de autoria do conselho técnico da escola da cidade, no qual cristiane muniz e fernando viégas são os arquitetos coordenadores.

local diadema, sp

projeto 2024

autoria escola da cidade

autoria arquitetura cristiane muniz, fernando viégas

co-autoria arquitetura bárbara francelin, thiago augusto zati

direção do conselho técnico guilherme paoliello

coordenação do conselho técnico felipe noto, maria júlia de castro herklotz

equipe arquitetura adriane de luca, caroline de oliveira tavares, carina costa dos santos, igor augusto coimbra de almeida, luiz fellipe machado, ricardson ferreira ricardo, luísa ferreira martins

estagiários arquitetura daniel nogueira rothstein parente, melissa alves vasques pereira albano, matheus alves, nicole mariano

colaboradores matheus pardal, rafael sampaio figueiredo de carvalho

 

consultoria institucional beatriz goulart

consultoria estrutura heloisa maringoni

consultoria cenotecnia gustavo lanfranchi arquitetura

consultoria acústica antonio ciampolini

consultoria de bombeiros ofos

consultoria cromática moracy amaral e almeida, silvia amstalden

 

construção consórcio CM quarteirão

concreto VA serviços de engenharia

metálica halis engenharia, semam

instalações MHA engenharia

impermeabilização proassp assessoria e projeto

luminotecnia ricardo heder

climatização ecologic air

conforto térmico dolce arquitetura + consultoria

paisagismo gabriella ornaghi e bianca vasone arquitetura da paisagem

workshop maquete marcelo dionísio, beatriz teixeira, guilherme noguti, pedro kenzo