EDIFÍCIO PUQ PERDIZES, 2019

Projeto vencedor do 2º Prêmio PROJETO de Arquitetura 2025, Categoria Edifícios Residenciais

Ao lado da PUC, tradicional universidade paulistana, o projeto se beneficia da dinâmica estudantil do bairro que oferece todas as qualidades da vida urbana: proximidade com o centro da cidade, infraestrutura de transporte público, comércio e serviços abundantes numa ocupação predominantemente residencial.

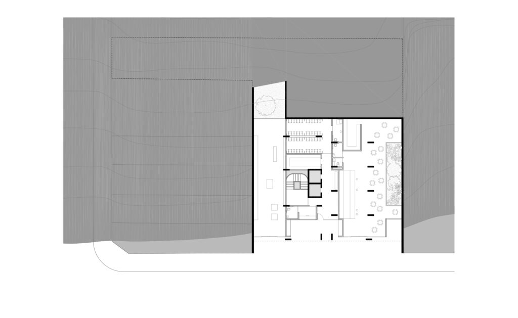
O terreno se situa em uma das tantas colinas de Perdizes e tem frente para duas ruas, porém abraçando alguns lotes que configuram a esquina. Assim, foi possível dar continuidade ao comércio local nas duas entradas que se acomodam em diferentes andares. O acesso principal é feito pela rua mais plana, com frente de lote maior.

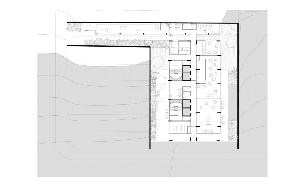
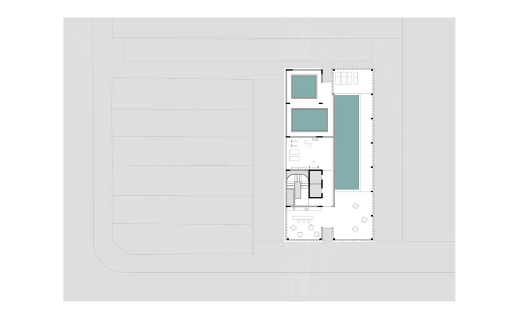
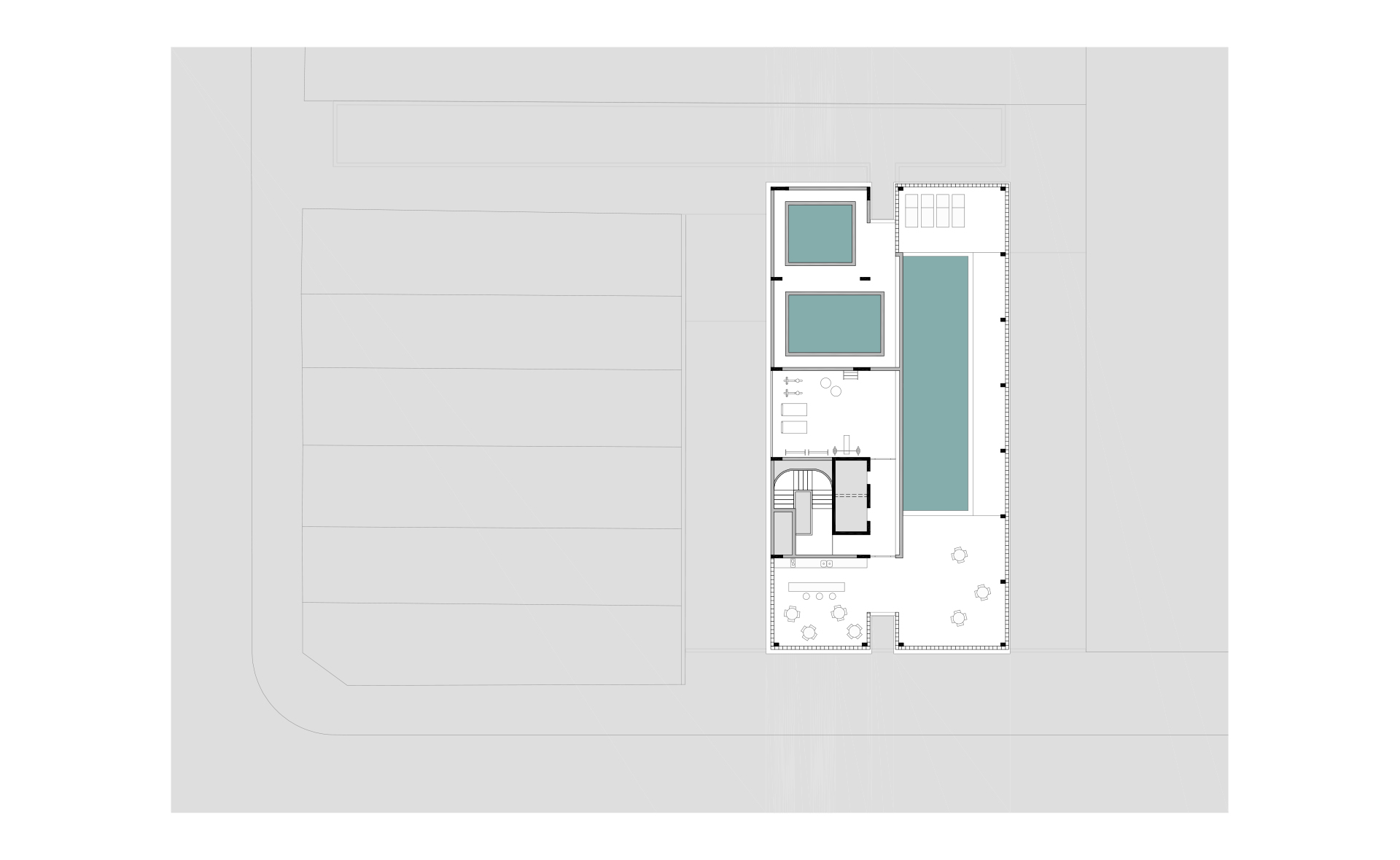
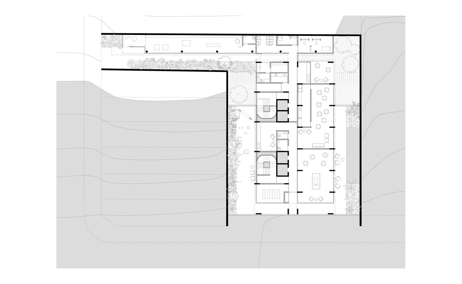
O edifício é classificado na legislação de São Paulo como HMP (habitação de mercado popular), o que coerentemente exime a necessidade de garagens. Apartamentos de pequenos tamanhos permitem que moradores sem alta renda convivam num bairro privilegiado. Ao mesmo tempo, as áreas comuns se tornam mais importantes. Os espaços de uso coletivo foram agrupados no térreo elevado, acima das lojas, e a piscina com solário fica na cobertura. Desta cota é possível avistar o Pico do Jaraguá, referência geográfica e sentimental.

Um conjunto de moradias temporárias conformam os primeiros andares e usufruem de uma piscina própria localizada sobre a loja linear que se abre para a rua inclinada. Essa quinta fachada é paisagem para os moradores.

Os sistemas construtivos são radicalmente econômicos para todas as etapas da obra. A estrutura de concreto se torna visível nos planos horizontais das lajes, que se projetam além dos planos verticais, fazendo a proteção das fachadas.

Um elemento vazado cerâmico filtra a luz dos planos voltados a oeste, castigados pelo sol da tarde, nos dois acessos e na cobertura, que tem toda a espacialidade configurada por esse material, gerando uma unidade plástica ao conjunto. A cor do edifício dialoga com muitas construções do entorno, enfatizando a intervenção como continuidade urbana, como regra, mais que exceção.

Todos os apartamentos possuem varandas e o ritmo de cheios e vazios varia conforme o tamanho das unidades.

A intervenção se constitui como um trecho de cidade: conectando as duas ruas por dentro do lote, costurando os níveis, criando usos nas coberturas, frentes ativadas com comércio e concentrando as unidades na torre de 19 pisos.

localização são paulo, sp

inicio do projeto 2019

conclusão da obra 2024

área total construída: 8621,66m²

arquitetura UNA MUNIZVIEGAS – cristiane muniz, fernando viégas

colaboradores joaquin gak, larissa urbano, manuela raitelli, matheus pardal, estudio maisum

incorporação you inc

construtora rocontec

 

acessibilidade ME lopes arquitetura

acústica akkerman

análise de desempenho inovatech

aquecimento solar chaguri consultoria

caixilhos p&s consultores

climatização ws ar condicionado

consultor de instalações RCA petrella

comunicação visual blue bossa

elétrica hidráulica proyecto engenharia

elevadores MB consultoria

estrutura | markup sayeg engenharia

fundações portella alarcon

impermeabilização proiso

interiores DP barros arquitetura

levantamento  ínvar topografia e agrimensura

paisagismo martha gavião arquitetura paisagística

sondagem engenharia gerencial SS

vedações INPRO engenharia

fotos nelson kon e alberto ricci